Mallorca, Font de Sa Cala
Die angebotene Villa entsteht auf einem ca. 855 m² großen Grundstück in Font de sa Cala (Gemeinde Capdepera). Das Projekt ist vollständig planerisch ausgearbeitet und verfügt über eine gültige Baugenehmigung. Der Kaufpreis für das fertiggestellte Objekt beträgt 2.900.000 €. Sobald ein Käufer vorliegt, kann der Bau unmittelbar beginnen. Alternativ ist auch der Erwerb inkl. bestehender Baugenehmigung zum genannten Preis möglich.
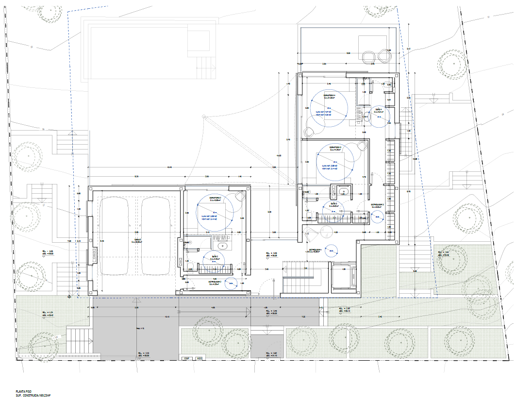
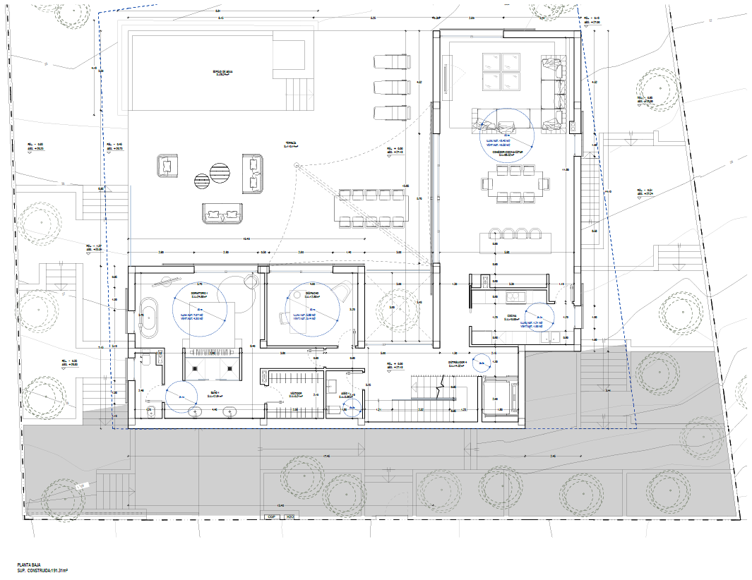
Die geplante Wohnfläche von rund 380 m² verteilt sich auf drei Ebenen. Das Haus ist modern konzipiert und bietet eine klare, funktionale Struktur:
Obergeschoss: Hauseingang, repräsentatives Entrée mit Innenpatio, drei Schlafzimmer jeweils mit Bad en suite; zwei Zimmer mit Ankleide, eines mit privater Terrasse. Zugang zur Garage.
Erdgeschoss: Großzügiger Wohn- und Essbereich, Küche, Hauptschlafzimmer mit Bad en suite und Terrasse, Arbeitszimmer, Gäste-WC sowie eine große Außenterrasse mit direktem Zugang zum Poolbereich.
Untergeschoss: Technikräume, Abstell- und Nutzräume, Waschküche sowie ein großer Raum mit eigenem Bad, vorgesehen als Wellness- bzw. Fitnessbereich.
Der Garten umfasst Terrassenflächen, Grünbereiche und den Pool. Die Gestaltung ist so geplant, dass Pflegeaufwand und Nutzbarkeit im Gleichgewicht stehen.
Sie sehen gerade einen Platzhalterinhalt von Google Maps. Um auf den eigentlichen Inhalt zuzugreifen, klicken Sie auf die Schaltfläche unten. Bitte beachten Sie, dass dabei Daten an Drittanbieter weitergegeben werden.
Mehr InformationenDie dargestellte Position der Immobilie ist nur eine ungefähre Angabe.
AGB & Haftungsklausel:
Bitte haben Sie Verständnis, dass Sie die exakte Adresse erst bei einer Besichtigung erfahren.
Das Objekt kann nach Absprache besichtigt werden:
Tel.: +34 971 566 178
Mob: +34 682 755 801 (auch WhatsApp)
E-Mail: contact@ccc-real-estate.com
Büro-Öffnungszeiten:
Montag - Donnerstag: 10:00 - 18:30 Uhr
Freitag: 10:00 - 17:00 Uhr
Termine außerhalb der Bürozeiten gerne nach Vereinbarung.
Weitere interessante Angebote unter www.ccc-real-estate.com
Alle Angaben basieren ausschließlich auf Informationen, die uns vom Eigentümer/Bauträger zur Verfügung gestellt wurden. Canaima Concept & Consulting, S.L. (CCC REAL ESTATE) übernimmt keine Gewähr für die Vollständigkeit, Richtigkeit und Aktualität dieser Angaben. Irrtum und Zwischenverkauf vorbehalten.
Die beim Kauf einer Immobilie in Spanien anfallenden Kauferwerbsnebenkosten (Grunderwerbssteuer / ggf. MwSt, Notargebühren, Abwicklungshonorar und Grundbuchkosten) sind vom Käufer zu tragen. Die Maklercourtage geht zu Lasten des Verkäufers.
© Canaima Concept & Consulting, S.L.
Entdecken Sie Ihre Finanzierungsmöglichkeiten für exklusive Immobilien mit dem Hypothekenrechner von Lionsgate, unserem vertrauensvollen Finanzpartner. Dieses intuitive Tool bietet Ihnen maßgeschneiderte Finanzierungslösungen, die zu Ihren exklusiven Immobilienambitionen passen. Genießen Sie Präzision und personalisierte Optionen, um Ihre Traumimmobilie zu realisieren. Starten Sie jetzt und planen Sie Ihre Zukunft.
Sie müssen den Inhalt von reCAPTCHA laden, um das Formular abzuschicken. Bitte beachten Sie, dass dabei Daten mit Drittanbietern ausgetauscht werden.
Mehr InformationenSie müssen den Inhalt von Turnstile laden, um das Formular abzuschicken. Bitte beachten Sie, dass dabei Daten mit Drittanbietern ausgetauscht werden.
Mehr InformationenSie müssen den Inhalt von reCAPTCHA laden, um das Formular abzuschicken. Bitte beachten Sie, dass dabei Daten mit Drittanbietern ausgetauscht werden.
Mehr InformationenSie sehen gerade einen Platzhalterinhalt von Turnstile. Um auf den eigentlichen Inhalt zuzugreifen, klicken Sie auf die Schaltfläche unten. Bitte beachten Sie, dass dabei Daten an Drittanbieter weitergegeben werden.
Mehr InformationenSie sehen gerade einen Platzhalterinhalt von Vimeo. Um auf den eigentlichen Inhalt zuzugreifen, klicken Sie auf die Schaltfläche unten. Bitte beachten Sie, dass dabei Daten an Drittanbieter weitergegeben werden.
Mehr InformationenSie sehen gerade einen Platzhalterinhalt von YouTube. Um auf den eigentlichen Inhalt zuzugreifen, klicken Sie auf die Schaltfläche unten. Bitte beachten Sie, dass dabei Daten an Drittanbieter weitergegeben werden.
Mehr InformationenSie sehen gerade einen Platzhalterinhalt von TrustIndex. Um auf den eigentlichen Inhalt zuzugreifen, klicken Sie auf die Schaltfläche unten. Bitte beachten Sie, dass dabei Daten an Drittanbieter weitergegeben werden.
Mehr Informationen